您好,欢迎来到染化在线! 登录 免费注册 帮助中心
关注

加入QQ群:131192077

0757-23608899
当前位置 > 首页 > 染化传媒 > 【头条】春节后:萧山化纤、印染、化工等11个行业大整治!近千家重污染企业关停转迁!
【头条】春节后:萧山化纤、印染、化工等11个行业大整治!近千家重污染企业关停转迁!
关键字:染化在线 染化传媒 化工 环保点击:19431 发表时间:2018-01-06
【导读】:1月2日,杭州萧山召开行业整治工作部署会,明确春节后对羽绒印染等11个行业展开全面整治。在2017年底完成卫浴行业整治、关停316家污染企业后,萧山区继续向11个重污染行业“开刀”...

        1月2日,杭州萧山召开行业整治工作部署会,明确春节后对羽绒印染等11个行业展开全面整治。在2017年底完成卫浴行业整治、关停316家污染企业后,萧山区继续向11个重污染行业“开刀”。萧山转型升级迎来规模最大的一次行业整治。


哪11个行业?

       根据《杭州市萧山区工业“ 低、小、散” 整治提升工作实施意见》,十二个重污染行业分别是印染、化工、铸造、电镀、水泥、羽绒、混凝土、卫浴、工艺鞋、热电、化纤(聚酯)、再生纤维

       根据《杭州市萧山区工业「低、小、散」整治提升工作实施意见》,萧山全区的重污染企业都有了整治时间表:意见明确,三年内,关停转迁重污染企业(作坊)1000 家以上。这意味着,最迟到2021年底,水泥厂、再生纤维企业等大部分重污染企业,在萧山境内将不复存在。


整治时间点初步确定

       会议确定,本月月底前,萧山将召开行业现场整治动员大会。在大会召开前,各部门和镇街将对十一个行业企业进行调查汇总,并提出最终处置意见。


       整治工作将在今年3月初正式启动,为期一个月。


       会议还明确,在整治推进过程中,区纪委将成立专门的督查组,督查各镇街工作进展情况,对进展缓慢或工作不力的,将进行约谈。对工作失职造成重要影响或后果,将依法依规进行严肃处理。


11个重污染行业展开摸底调查

       为了春节后能顺利推进11个行业的整治,萧山明确,春节前,萧山必须抓紧做好企业全面摸底调查、开展执法行动、分类汇总行业企业信息、制定整治提升的标准等四项主要工作。


       根据摸底调查和现场执法情况,萧山区有关部门将对11个行业企业进行汇总分析,确定每家企业的整治类别,并综合提出处置意见。同时,萧山区环保局、区安监局等相关部门,将按照各行业的特点起草好差别化的标准要求,为春节后拉开全面整治的工作奠定政策基础。

       记者了解到,萧山区12个重污染行业整治专项行动,是萧山改造提升“低小散”六大专项行动之一。其余五大专项行动分别是淘汰落后产能、取缔“四无企业”产业整治、老旧工业园区改造提升、小微企业园区建设、专业园区建设。通过六大专项行动,工业大区萧山将完成产业腾空重塑,加快产业转型升级,打造现代化国际城区。


搬迁企业去哪里?

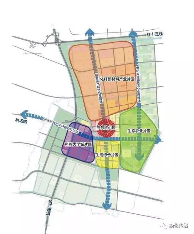
       2017年,萧山化纤纺织行业被列入全省21个传统制造业改造提升试点。


       今后,包括衙前镇在内萧山的化纤纺织企业将重新整合、创新提升,进入位于益农的10.8平方公里的纤维新材料产业生态区。这样一场“资源的重新整合”之后,化纤纺织这棵传统经济的“老树”也将不断萌发出创新发展的“嫩芽”。

       除了化纤企业,萧山区的印染企业、化工企业、电镀企业、羽绒企业、工艺鞋企业都将大大减少。一些企业将被关停,一些则会转迁。这其中,有不少行业曾经是部分镇街的支柱产业,行业的大整合,将倒逼镇街进行产业升级。比如,萧山另一处专业产业园区位于义桥,这里将专注于装备制造(汽车)产业。


       许多小微企业今后也将进入萧山的小微企业园区,并获得大力扶持。萧山计划3年内推动1000家以上小微企业入园提升发展,并提供税收返还等优惠政策,这意味着大量企业的搬迁。


3年内,萧山将关停企业(作坊)1000 家以上

重污染行业整治方面,最迟到 2021 年底,萧山境内这些企业将不再存在:


▪ 水泥厂,全部关停

▪ 再生纤维企业,全部关停


而绕城高速范围以内,这些企业也将关停:

▪ 所有印染企业

▪ 所有铸造企业

▪ 所有电镀企业(除专业园区外)

▪ 所有混凝土企业

▪ 所有热电企业

▪ 所有化纤(聚酯)企业


      总而言之,今后萧山的工业企业,将集聚在合理规划、科学定位的工业园区之内,这不仅有利于生产,更减轻了污染。这也是一场企业的大洗牌,行业的大变革。


萧山区2017年产业结构调整重点任务表

(涉及7家纺织印染和化纤企业)


萧山区2017年重点企业清洁生产审核任务表

(涉及7家纺织印染和化纤企业)


萧山区2017挥发性有机物(VOCs)治理重点任务表

(涉及12家纺织印染和化纤企业)


附:萧山42家印染定型企业名单


编后语

       印染是纺织产业链中提高纺织品附加值的关键环节,既是高技术、高附加值的行业,同时也是纺织工业节能减排、环境保护的重点行业。没有印染,纺织服装将会没有色彩及一些功能效果,时尚更是无从谈起。作为纺织工业最重要的行业之一,近年来却遭遇了“史上最严”的重重考验。


       总而言之,今后萧山的工业企业,将集聚在合理规划、科学定位的工业园区之内,这不仅有利于生产,更减轻了污染。这也是一场企业的大洗牌,行业的大变革。

来源:萧山日报、纺织印染服装平台

染化传媒综合整理编辑 出品

染化在线网版权与免责声明:

1.本着“开放、协作、分享”的互联网精神,我们欢迎各方自媒体、传统媒体与机构,转载、引用染化在线的原创内容,但必须注明来源自染化在线网,否则我们将依法追究侵权责任。

2.原则上,我们同意在注明出处的前提下,各方使用染化在线的原创素材(图片、视频等)。

3.染化在线网尊重各方知识产权,保护原创作者的合法权益。如发现本站文章存在版权问题,请联系微信rhzxzjf,我们将及时核查、处理。

您要定制哪种产品?

相关搜索
服务流程 定制全程实时提醒